Objektnummer: 22-002-02-021
-
Utepl/Balkong i nordläge
Kort beskrivning
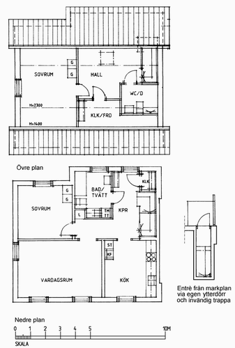
En rymlig lägenhet me, tre sovrum, vardagsrum, kök och badrum.
Lägenheten är belägen i Gamla Torshälla, vilket är en av de charmigaste delarna av Torshälla. Längs kullerstensgatorna ligger husen med plats för livet, familjen och återhämtning. Det blir nya köksluckor,trappen slipas, målas i sovrum uppe
Du erbjuds
När du bor hos oss på Kfast får du en erfaren hyresvärd som hjälper dig i livets alla skeden. Med närvarande personal så som trygghetsvärdar, miljövärdar och fastighetsskötare kan du känna dig trygg med att ditt bostadsområde tas väl hand om.
