Objektnummer: 1320305
-
Individuell varmvattenmätning
Kort beskrivning
Välkommen till ditt nya hem på Carl-Johansgatan 4!
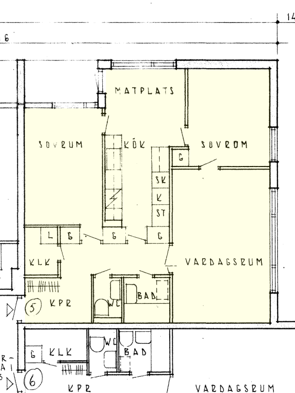
Här har du chansen att flytta in i en rymlig och modern 3:a om 80 kvm – perfekt för dig som söker både komfort och ett smidigt boende. Lägenheten ligger på tredje våningen i huset och erbjuder en härlig balkong där du kan njuta av frisk luft och lugna stunder.
Bostaden är nyligen ROT-renoverad, vilket innebär att du får ett fräscht hem med nya vitvaror, modernt kök och uppdaterade installationer. Här kan du laga mat i ett stilrent kök och samtidigt känna tryggheten i att allt är i gott skick.
Planlösningen är genomtänkt med två sovrum, ett ljust vardagsrum och ett praktiskt badrum – perfekt för både familjen och dig som vill ha extra utrymme för hemmakontor eller gäster.I området finns skolor, förskolor, matbutiker och service på bekvämt avstånd, vilket gör vardagen enkel och smidig. För den som pendlar eller vill ta sig in till centrum finns goda kommunikationer och cykelvänliga vägar som snabbt tar dig dit du vill.
Du erbjuds
När du bor hos oss på Kfast får du en erfaren hyresvärd som hjälper dig i livets alla skeden. Med närvarande personal så som trygghetsvärdar, miljövärdar och fastighetsskötare kan du känna dig trygg med att ditt bostadsområde tas väl hand om.
