Objektnummer: 07-006-01-032
Kort beskrivning
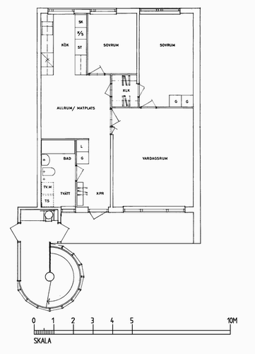
En rymlig och trevlig lägenhet med balkong, två sovrum, vardagsrum, kök och ett
badrumSäby är ett familjevänligt bostadsområde med nära till skolor och lekparker. Här bor du nära naturen och Torshargs populära idrottsplats. Under vintern har du också nära till flera pulkabackar.
Torshälla ligger cirka 7 kilometer från Eskilstuna och har ett centrum med affärer, apotek, restauranger med mera. Det finns även ett brett utbud av olika föreningar som bland annat erbjuder ridning, segling, golf, fotboll och handboll.
Du erbjuds
När du bor hos oss på Kfast får du en erfaren hyresvärd som hjälper dig i livets alla skeden. Med närvarande personal så som trygghetsvärdar, miljövärdar och fastighetsskötare kan du känna dig trygg med att ditt bostadsområde tas väl hand om.
